Menu

Aanbod koop

  • Verkocht
Deze fijne eengezinswoning heeft vier slaapkamers en is gelegen op een rustige locatie op loopafstand van het oude dorpscentrum met alle denkbare winkelvoorzieningen. De woning heeft een heerlijke diepe achtertuin die besloten worden door een riante stenen berging. De woning is voorzien van een dakopbouw waardoor er een grote zolderkamer is gerealiseerd. Stapt u op de fiets dan bent u binnen 10 minuten op de gezellige boulevard of in het uitgestrekte wandel en duingebied

Kenmerken

  • Pand soort
  • Pand status
  • Aantal kamers
  • Aantal slaapkamers
  • Bouwjaar
  • Inhoud
  • Woonoppervlakte
  • Perceeloppervlakte
  • Particulier
  • Verkocht
  • 5
  • 4
  • 1940
  • 324 m3
  • 95 m2
  • 143 m2

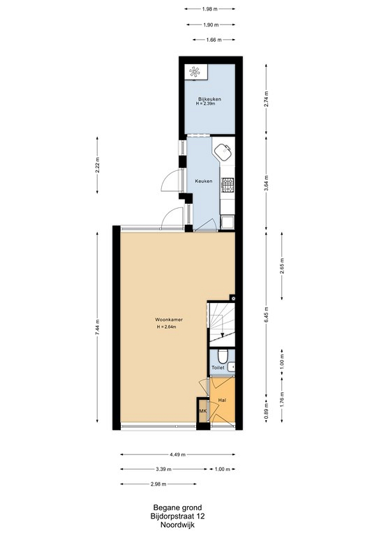
Indeling

Entree, een hal met de meterkast, de toiletruimte met een wandcloset en een fonteintje. Een bijzonder sfeervolle woonkamer met een houten ondervloer met laminaat eroverheen. Aan de achterzijde in de uitbouw vindt u de keuken met de aansluitingen voor de wasapparatuur, een 4-pits gaskookplaat met afzuigkap, een oven en een vaatwasser. In de bijkeuken staat de Amerikaanse koelkast, de achtertuin is via een deur in de keuken bereikbaar.

Eerste verdieping

Via een trap in de woonkamer bereikt u de eerste verdieping. De gehele verdieping is voorzien van een laminaatvloer, de trap is netjes bekleed. Via de overloop is de badkamer te bereiken met een wastafel, een hangend toilet en een douchecabine. Aan de voorzijde ligt de grootste slaapkamer op deze verdieping. Aan de achterzijde liggen de tweede en de derde slaapkamer. Ook deze kamers hebben een laminaatvloer.

Tweede verdieping

De zolder is via een vaste trap bereikbaar en is voorzien van een grote dakopbouw, door deze verbouwing is een grote zolderkamer ontstaan. In de hoek van de kamer is er een kleine kast met de opstelling van de CV-ketel (Nefit 2022).

Tuin

De woning beschikt over een diepe achtertuin met een grote stenen berging. Deze tuin is achterom bereikbaar. Ook in de voortuin is het prima vertoeven onder het elektrisch bedienbare zonnescherm!

Bijzonderheden

De woning heeft een heerlijke diepe zonnige achtertuin;
De stenen berging kan riant worden genoemd;
De tuin is achterom bereikbaar;
De woning heeft een elektrisch bedienbaar zonnescherm aan de voorzijde;
Ook in de voortuin is het daardoor prima vertoeven;
Ligging op loopafstand van alle denkbare winkelvoorzieningen;
Het heerlijke Noordwijkse zandstrand ligt op fietsafstand.

Heeft u interesse in deze woning?