Menu

Aanbod koop

Duinschooten 12 163, Noordwijkerhout

  • Verkocht onder voorbehoud
Deze prachtige recreatieve bungalow is gelegen op een rustige plek op het uitgestrekte en groenrijke recreatiepark Sollasi! De goed onderhouden bungalow is volledig voorzien van kunststof kozijnen en heeft twee ruime slaapkamers. De tuin is met zorg bestraat en biedt volledige privacy door de coniferenhaag. De ligging is zeer centraal op fietsafstand van het duingebied maar ook nabij steden zoals Haarlem, Leiden en Den Haag. Wilt u culinair genieten aan het water dan kan dat zowel bij COMO & Co als bij het fameuze restaurant de Volière!

Kenmerken

  • Pand soort
  • Pand status
  • Aantal kamers
  • Aantal slaapkamers
  • Bouwjaar
  • Inhoud
  • Woonoppervlakte
  • Perceeloppervlakte
  • Particulier
  • Verkocht onder voorbehoud
  • 3
  • 2
  • 1976
  • 214 m3
  • 51 m2
  • 162 m2

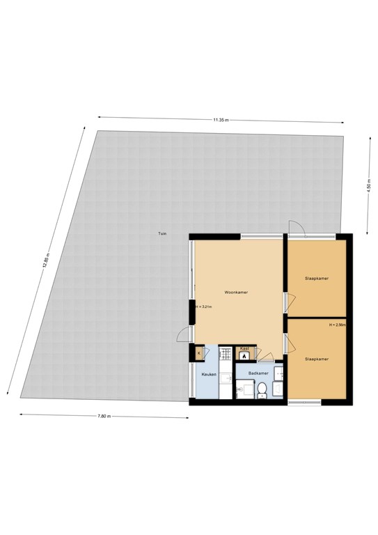
Indeling

Entree, een ruime en aangenaam lichte woonkamer met een schuifdeur naar de tuin. De moderne en in lichte kleur uitgevoerde keuken is voorzien van diverse inbouwapparatuur zoals een 4-pits gaskookplaat, een afzuigkap, een combimagnetron, een koelkast en een vaatwasser. De cv-ketel (Nefit 2019) is keurig weggewerkt in een kast. De fraai betegelde badkamer heeft een wastafelmeubel, een toilet en een inloopdouche. Via een dakraam kan de badkamer prima worden geventileerd. De bungalow heeft twee volwaardige slaapkamers, beide met een fraaie laminaatvloer.

Tuin

De tuin heeft een vrijstaande berging en is keurig aangelegd, onder het elektrisch bedienbare zonnescherm is het ook op de heetste dagen prima vertoeven!

Bijzonderheden

Centrale ligging nabij het strand en het uitgestrekte duingebied;
De parkkosten bedragen € 1.400 per jaar, dit wordt per halfjaar gefactureerd;
Waterverbruik/verontreinigingsheffing worden tegelijk met de parkkosten in rekening gebracht;
Op het park is volop parkeergelegenheid;
De woning is gelegen op in erfpacht uitgegeven grond;
De erfpachtvergoeding bedraagt thans € 3.343,00 per jaar;
De erfpacht wordt verlengd op 1 januari 2027 voor een periode van 20 jaar;
Na de verlenging op 1 januari 2027 zal de erfpacht circa € 4.450 per jaar gaan bedragen;
De woning heeft een recreatieve bestemming en mag niet permanent worden bewoond;
Ligging nabij het gezellige centrum van Noordwijkerhout;
De woning heeft energielabel E en is geldig tot 9 april 2035.

Heeft u interesse in deze woning?