Menu

Aanbod koop

Duinschooten 12 142, Noordwijkerhout

  • Nieuw
Vraagprijs: € 229.000,00 k.k.
Deze recreatieve hoekwoning is gelegen op een royaal perceel van maar liefst 240m² op het groenrijke, rustige en uitgestrekte recreatiepark Sollasi. De woning heeft drie slaapkamers en dat maakt de bungalow uitermate goed verhuurbaar voor grotere gezinnen. Het park is gelegen op steenworp afstand van het Oosterduinse meer en in de twee gerenommeerde restaurants Como & Co en De Volière is het werkelijk culinair genieten. De woning staat op in erfpacht uitgegeven grond en kan niet permanent worden bewoond. De ligging is zeer centraal nabij de bruisende dorpskern van Noordwijkerhout en het prachtige duingebied van Noordwijk. Ook steden zoals Haarlem, Leiden en Den Haag liggen dichtbij.

Kenmerken

  • Pand soort
  • Pand status
  • Aantal kamers
  • Aantal slaapkamers
  • Bouwjaar
  • Inhoud
  • Woonoppervlakte
  • Perceeloppervlakte
  • Particulier
  • In verkoop
  • 4
  • 3
  • 1975
  • 165 m3
  • 62 m2
  • 240 m2

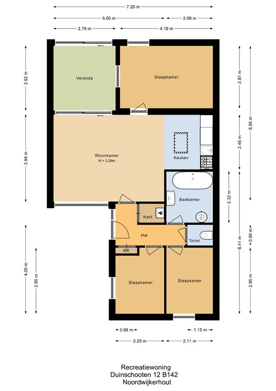
Indeling

Entree, hal met de meterkast en een kast met de cv-ketel en het toilet. De woonkamer is riant en aangenaam licht en een fraaie en in lichte kleur uitgevoerde open keuken met diverse inbouwapparatuur. Er zijn twee slaapkamers aan de voorzijde en een riante slaapkamer aan de achterzijde. De badkamer heeft een inloopdouche, een wastafelmeubel en de aansluitingen voor de wasapparatuur. Het dakraam kan worden geopend, dit is ideaal voor de ventilatie. Via de veranda is de heerlijk ruime tuin te bereiken, de houten schutting zorgt voor de privacy en de zonligging van de tuin is werkelijk fantastisch.

Tuin

Een riante tuin met veel privacy en de ideale zonligging!

Bijzonderheden

- De perceeloppervlakte is maar liefst 240m²;
- De woning heeft drie slaapkamers;
- Een lichte open keuken met diverse inbouwapparatuur;
- De uitbouw is voorzien van een vergunning:
- De woning heeft een recreatieve bestemming
- De woning kan niet permanent worden bewoond;
- De parkkosten bedragen ca. € 1.600,-- per jaar
- De erfpacht loopt tot 31-12-2027 en kan daarna worden verlengd;
- De woning is zeer goed verhuurbaar;
- De oplevering kan op korte termijn plaatsvinden.

Heeft u interesse in deze woning?