Menu

Aanbod koop

  • Nieuw
Vraagprijs: € 483.500,00 k.k.
Deze verrassend ruime tussenwoning is gelegen op een rustige locatie in de Victorwijk op loopafstand van een supermarkt en een basisschool met kinderopvang. De woning is zeer goed onderhouden en is voorzien houten kozijnen met isolerende beglazing. De woning heeft vier ruime slaapkamers en een heerlijke diepe betegelde achtertuin met een houten schutting. Het centrum van noordwijkerhout met alle belangrijke winkelvoorzieningen ligt op fietsafstand. Het prachtige duingebied en het strand is met de fiets binnen 15 minuten bereikbaar!

Kenmerken

  • Pand soort
  • Pand status
  • Aantal kamers
  • Aantal slaapkamers
  • Bouwjaar
  • Inhoud
  • Woonoppervlakte
  • Perceeloppervlakte
  • Particulier
  • In verkoop
  • 5
  • 4
  • 1974
  • 437 m3
  • 128 m2
  • 131 m2

Indeling

Entree, de hal met de meterkast, de garderobe en bergruimte onder de trap met de verdeler voor de vloerverwarming. De toiletruimte is met smaak vernieuwd en voorzien van een wandcloset en een fonteintje. De keuken is gelegen aan de voorzijde van de woning en is uitgerust met een vriezer, een koelkast, een close-in-boiler, een dubbele spoelbak, een gaskookplaat en een afzuigkap. De woonkamer heeft een PVC-vloer met comfortabele vloerverwarming en biedt uitzicht op de verzorgde en aangenaam diepe achtertuin. Een houten schutting waarborgt de privacy, de tuin is achterom bereikbaar.

Eerste verdieping

Overloop met aan de voorzijde de ruime en volledig in lichte kleur betegelde badkamer met een wandcloset, een douchecabine, een wastafelmeubel met dubbele spoelbak en een handdoekradiator. De eerste slaapkamer is gelegen aan de voorzijde en heeft ingebouwde kastruimte. Aan de achterzijde is er nog een tweede slaapkamer eveneens met ingebouwde kasteruimte en tenslotte de derde slaapkamer met uitzicht over de achtertuin.

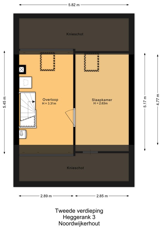
Tweede verdieping

De zolder heeft een grote overloop met een dakraam aan de achterzijde en veel bergruimte achter de schotten aan de voor- en achterzijde. Op de overloop hangt de CV-ketel (Intergas HRE 2021) en is er ook een aansluiting voor de wasapparatuur. De zolderkamer is aangenaam licht door het dakraam aan de achterzijde.

Tuin

In de voortuin staat een stenen berging met elektriciteit. De diepe achtertuin is volledig betegeld en heeft een zonnescherm over de gehele breedte van de woning. De tuin is achterom bereikbaar.

Bijzonderheden

Het schilderwerk van deze woning is door een echte vakman uitgevoerd;
De woning heeft energielabel C geldig tot 3 maart 2036;
De woning heeft vier volwaardige slaapkamers;
Er is voldoende parkeergelegenheid in deze straat;
De gasleiding is in 2020 vernieuwd;
Het toilet is in 2025 volledig vernieuwd;
Glasvezel is aangelegd tot aan de woning;
De meterkast is vernieuwd in 2021;
De CV-ketel (Intergas) dateert van 2021.

Heeft u interesse in deze woning?