Menu

Aanbod koop

's-Gravendamseweg 16 W, Noordwijkerhout

  • Verkocht
Dit werkelijk prima onderhouden 3-kamer appartement is gelegen op de bovenste woonlaag van het statige appartementencomplex “Gravenhorst”. Vanaf het zeer brede balkon aan de voorzijde heeft u een prachtig weids uitzicht over de bollenvelden! Het appartement beschikt over een grote berging en een dubbele parkeerplek in de parkeerkelder. De vereniging van eigenaren is zeer actief en beschikt over een reserve voor toekomstig onderhoud.

Kenmerken

  • Pand soort
  • Pand status
  • Aantal kamers
  • Aantal slaapkamers
  • Bouwjaar
  • Inhoud
  • Woonoppervlakte
  • Perceeloppervlakte
  • Particulier
  • Verkocht
  • 3
  • 2
  • 2008
  • 255 m3
  • 85 m2
  •  m2

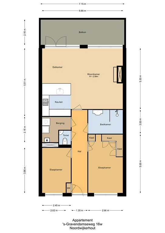
Indeling

Centrale entree op de begane grond, er is een lift beschikbaar maar u kunt ook via het trappenhuis naar het appartement. Via de galerij aan de achterzijde komt u bij het appartement. Entree appartement, een ruime hal met een laminaatvloer, de meterkast, de intercom en de toiletruimte met een wandcloset. Er is een aparte berging/washok met de aansluitingen voor de wasapparatuur, een werkblad voor het vouwen van de was, een wastafel en in deze ruimte hangt ook de cv-ketel (Intergas 2016). De volledig betegelde badkamer is aangenaam ruim en beschikt over een praktische inloopdouche, een wastafelmeubel, een handdoekradiator, ventilatie en sfeerverlichting. In de zeer brede woonkamer met een gashaard is het echt heerlijk vertoeven, het uitzicht is fantastisch en door de breedte van het appartement is het er altijd licht! De keuken is van hoge kwaliteit en heeft een hardstenen aanrechtblad, opvallend veel bergruimte en is verder voorzien van diverse inbouwapparatuur zoals een 4-pits gaskookplaat met afzuigkap, een koelkast, een vriezer, een combimagnetron, een carrousel kast en een vaatwasser.

Tuin

Op de begane grond is er aan de achterzijde van het complex een grote gemeenschappelijke tuin met een berging waarvan alle bewoners gebruik mogen maken. Een ideale plek om de jaarlijkse BBQ te houden!

Bijzonderheden

De servicekosten bedragen € 222,40 per maand;
Het appartement is via een lift en het trappenhuis bereikbaar;
Er is een actieve vereniging van eigenaren die professioneel wordt beheerd;
De vereniging beschikt over een meer jaren onderhoudsplan;
Het appartement beschikt over een dubbele parkeerplek in de parkeergarage;
Er zijn twee volwaardige slaapkamers aanwezig in het appartement;
Het appartement beschikt over een elektrisch bedienbaar zonnescherm;
Het energielabel is A en is geldig tot 9 mei 2035;
Het appartement beschikt over een berging in de onderbouw;
Er liggen 45 zonnepanelen op het gebouw;
De opgewekte stroom wordt gebruikt voor de openbare ruimten (lift e.d.).

Heeft u interesse in deze woning?