Menu

Aanbod koop

Sint Pieterstraat 8 , Noordwijkerhout

  • Verkocht
Deze zeer duurzame en haast gloednieuwe hoekwoning is gelegen op een rustige locatie in de groenrijke en gewilde nieuwbouwwijk Landgoed in den Houte. De riante woning is keurig en met veel smaak afgewerkt, is voorzien van het energielabel A+++ en heeft vier volwaardige slaapkamers. De ligging is zeer centraal op loopafstand van het centrum van Noordwijkerhout met alle denkbare winkelvoorzieningen en op fietsafstand van het uitgestrekte bos, zee- en duingebied van Noordwijk.

Kenmerken

  • Pand soort
  • Pand status
  • Aantal kamers
  • Aantal slaapkamers
  • Bouwjaar
  • Inhoud
  • Woonoppervlakte
  • Perceeloppervlakte
  • Particulier
  • Verkocht
  • 6
  • 5
  • 2022
  • 488 m3
  • 137 m2
  • 149 m2

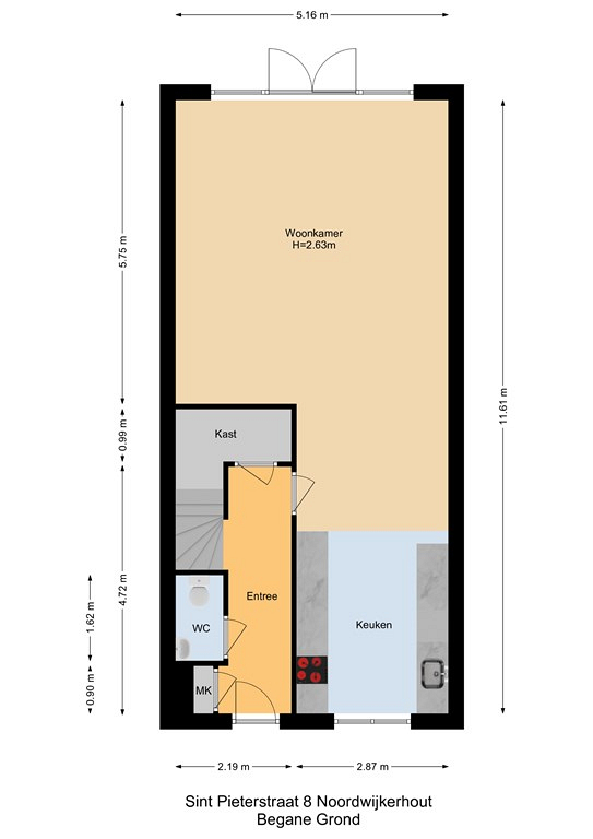
Indeling

Entree, een ruime hal met de meterkast, de volledig betegelde toiletruimte en een kast onder de trap met de verdeler van de vloerverwarming, de warmtepomp en een extra boiler (100 liter). De woonkamer heeft een prachtige in visgraat gelegen PVC-vloer met vloerverwarming. De fraaie keuken is gelegen aan de voorzijde en is voorzien van diverse inbouwapparatuur zoals een vaatwasser, een inductiekookplaat met wandafzuigkap, een oven, een combimagnetron en een lekker grote vriezer en koelkast. De keurig aangelegen achtertuin is via de openslaande deuren aan de achterzijde te bereiken.

Eerste verdieping

Overloop, aan de voorzijde bevindt zich de eerste slaapkamer met een frans balkon. Een royale badkamer met een inloopdouche, een wastafelmeubel, een spiegelkast, een wandcloset en ook hier vloerverwarming. Aan de achterzijde de ruime (ouder) slaapkamer en een wat kleiner derde slaapkamer. Ook deze verdieping is volledig voorzien van vloerverwarming.

Tweede verdieping

Overloop met aan de voorzijde de opstelling van de wasapparatuur en de ventilatie-unit. Aan de voorzijde bevindt zich de eerste (slaap) kamer, door het plaatsen van een dakraam kan hier nog een extra volwaardige slaapkamer van gemaakt worden. Aan de achterzijde ligt de grote slaapkamer met een dakraam en veel bergruimte achter de schotten. Op de zolder is alleen de slaapkamer aan de achterzijde voorzien van vloerverwarming

Tuin

De keurig betegelde achtertuin is gelegen op het oosten en heeft een vrijstaande houten berging. De privacy wordt gewaarborgd door de houten schuttingen, de tuin is achterom bereikbaar.

Bijzonderheden

De woning is haast gloednieuw, de oplevering was in 2022;
Uitermate duurzame woning met het energielabel A+++;
Ligging op loopafstand van het levendige centrum;
De woning is op iedere verdieping voorzien van een brandmelder
De woning is gasloos opgeleverd;
De woning heeft 4 zonnepanelen;
Een aangenaam rustige ligging in een doodlopende straat;
Er is volop parkeergelegenheid in de straat.

Heeft u interesse in deze woning?