Menu

Aanbod koop

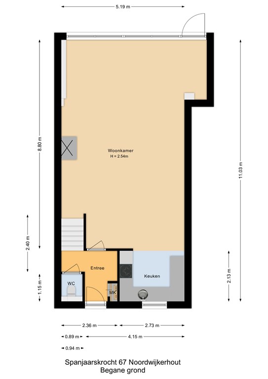
Spanjaarskrocht 67 , Noordwijkerhout

  • Verkocht
Deze verrassend ruime hoekwoning met energielabel A is gelegen in de wijk Zeeburg, deze wijk ondergaat op dit moment een totale metamorfose waardoor het een nog fijnere plek wordt om te wonen. De woning is aan de achterzijde over de gehele breedte uitgebouwd en heeft een royale stenen berging (voorheen garage) met een bergzolder. Er is geen doorgaand verkeer in deze straat, dat maakt de plek heerlijk rustig. Aan de voorzijde is er vrij uitzicht over een speelveldje en het uitgestrekte groenrijke park ligt op een steenworp afstand. Met de fiets is het gezellige centrum van Noordwijkerhout snel te bereiken evenals het uitgestrekte bos, zee en duingebied.

Kenmerken

  • Pand soort
  • Pand status
  • Aantal kamers
  • Aantal slaapkamers
  • Bouwjaar
  • Inhoud
  • Woonoppervlakte
  • Perceeloppervlakte
  • Particulier
  • Verkocht
  • 4
  • 3
  • 1985
  • 452 m3
  • 126 m2
  • 170 m2

Indeling

Entree, hal met de toiletruimte en de in 2022 vernieuwde meterkast. De woonkamer is werkelijk riant en voorzien van houten vloerdelen, een praktische werkplek onder de trap en een fraaie schouw met een gashaard. Aan de achterzijde is er een in kunststof uitgevoerde kozijn met zowel een deur als een schuifpui naar de besloten achtertuin. De keuken bevindt zich aan de voorzijde en is voorzien van een inductie kookplaat, een afzuigkap, een koelkast met vriesvak, een oven en een close-in-boiler. Vanuit de keuken heeft u vrij uitzicht over het speelveldje.

Eerste verdieping

Overloop, aan de voorzijde bevindt zich de eerste slaapkamer en de badkamer met een luxe douche, een wandcloset, een handdoekradiator, een dubbele wastafel en comfortabele vloerverwarming. Aan de achterzijde ligt een meer dan royale slaapkamer die met recht een masterbedroom genoemd mag worden. Deze kamer is aangenaam licht door het brede front en biedt uitzicht over de achtertuin.

Tweede verdieping

Overloop met een wasbak, aan de voorzijde de aansluitingen voor de wasapparatuur en de opstelling van zowel de cv-ketel (Remeha CW5 2023) als de hybride warmtepomp (Remeha ELGA ACE 2023). Er is ook een bergvliering gerealiseerd die met een losse trap bereikbaar is. De overloop is erg licht door het grote dakraam, dit dakraam kan ook worden geopend. Tenslotte een ruime en zeer lichte zolderkamer (voorheen 2 slaapkamers) met aan de voorzijde een recht opgetrokken pui en twee dakramen aan de achterzijde.

Tuin

Een besloten op het zuidwesten gelegen achtertuin die toegang biedt tot de grote stenen berging met een bergzolder. Het is goed vertoeven in deze zonnig tuin en mocht het u te heet worden dan biedt het elektrisch bedienbare zonnescherm uitkomst!

Bijzonderheden

De woning heeft een parkeerplaats op eigen terrein;
De woning beschikt over label A, geldig tot 17 augustus 2033
De woning is in 2012 voorzien van een dakopbouw;
De uitbouw aan de achterzijde dateert van 2001;
In 2022 zijn er 11 zonnepanelen geplaatst, verdeeld over 3 platte daken;
In 2023 is de hybride warmtepomp geplaatst;
In 2023 is de cv-ketel (CW5) geplaatst;
Het schilderwerk aan de voorzijde dateert van 2020;
Het schilderwerk aan de achterzijde en van de garage dateert van 2022;
In 1995 is aan de voorzijde de gevel op zolder recht opgetrokken;
De zijgevel aan de westkant is nageïsoleerd.

Heeft u interesse in deze woning?