Menu

Aanbod koop

  • Nieuw
Vraagprijs: € 377.500,00 k.k.
Deze tussenwoning is bijzonder sfeervol en met veel smaak afgewerkt! De woning is gelegen in het uitermate gezellige oude centrum met werkelijk alle winkelvoorzieningen op steenworp afstand. De woning heeft drie volwaardige slaapkamers en een heerlijke achtertuin. Lisse is een bruisend dorp met veel goede restaurantjes en is gelegen in het hart van de bollenstreek. De ligging is aangenaam centraal met het duingebied en het strand op fietsafstand en nabij prachtige steden zoals Haarlem, Leiden en Den Haag.

Kenmerken

  • Pand soort
  • Pand status
  • Aantal kamers
  • Aantal slaapkamers
  • Bouwjaar
  • Inhoud
  • Woonoppervlakte
  • Perceeloppervlakte
  • Particulier
  • In verkoop
  • 4
  • 3
  • 1910
  • 308 m3
  • 81 m2
  • 77 m2

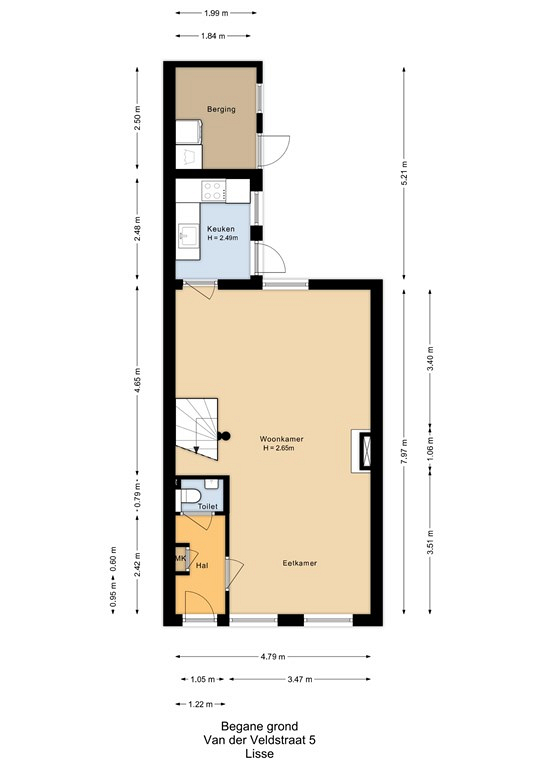
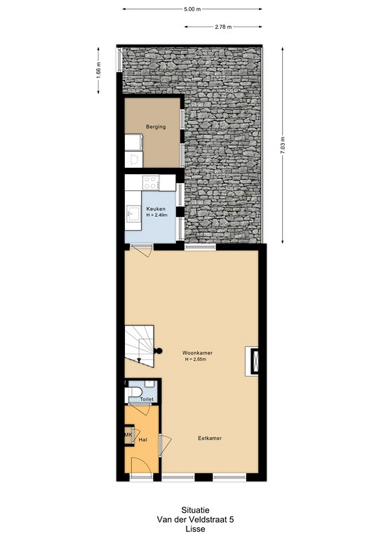
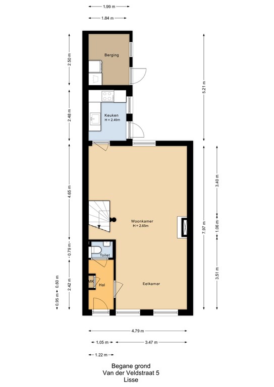
Indeling

U komt binnen in een kleine hal met de meterkast en de keurig en volledig betegelde toiletruimte. De ruime woonkamer is echt een heerlijke plek om vertoeven met aan de voorkant de gezelligheid van de straat en aan de achterzijde de rust in de achtertuin. De keuken is gelegen aan de achterzijde en is voorzien van diverse inbouwapparatuur zoals kleine vaatwasser, een spoelbak, een magnetron en een inductie kookplaat met afzuigkap. Via de keuken is de achtertuin te bereiken met een stenen berging, hier bevindt zich de CV-ketel (Remeha).

Eerste verdieping

Overloop met aan de voorzijde de ruime badkamer met een toilet, een wastafelmeubel en een halfronde douchecabine. De eerste slaapkamer met ingebouwde kastruimte is gelegen aan de voorzijde, via deze kamer is de bergruimte op de overloop te bereiken. Aan de achterzijde zijn er nog twee volwaardige slaapkamers met uitzicht over de achtertuin.

Bijzonderheden

Bijzonderheden:

In 2021/2022 hebben er veel verbeteringen in de woning plaatsgevonden:
• De keuken is in 2021 volledig vernieuwd;
• In 2021 zijn de kozijnen op de begane grond voorzien van dubbele beglazing;
• In 2021 is de achtertuin opnieuw bestraat;
• In 2022 is het dak van de schuur vernieuwd;
• In 2022 is er een nieuwe CV-ketel geplaatst;
• In 2022 zijn de kozijnen van de eerste verdieping voorzien van dubbele beglazing;
• In 2023 is er nog een nieuwe oven ingebouwd.

Heeft u interesse in deze woning?